ARRIENDO DEPTO. NUEVO DE 1D1B INDEPENDENCIA METRO HOSPITALES
- 38 m²
- 1
UF 7,6
$300.000

Maria Isabel Abarca Quevedo
UF 10.121,2
$400.000.000
Santa Adela
Oportunidad de inversión única Quintero, Mantagua, Ritoque, Concón.
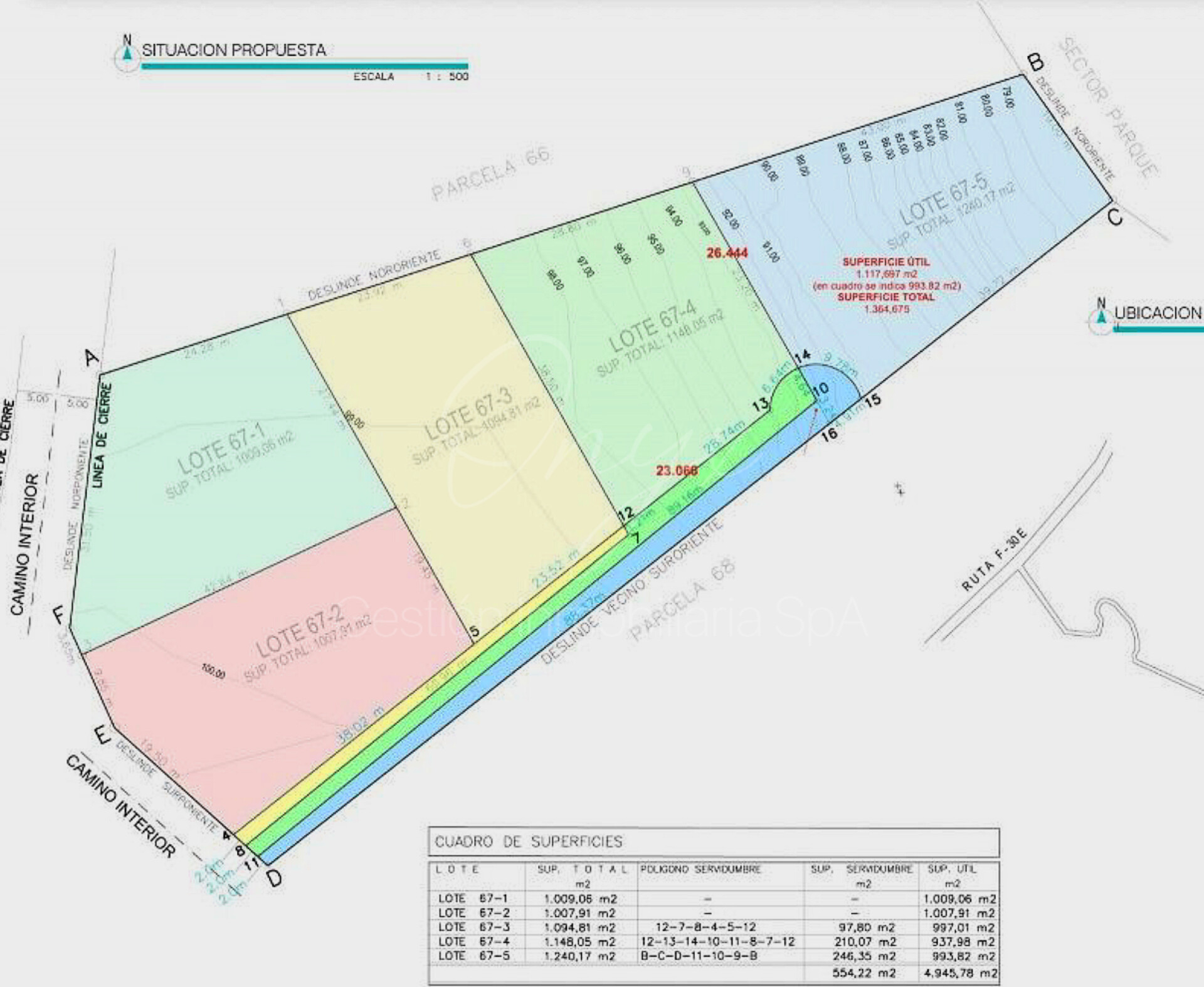
Proyecto de subdivision con 5 terrenos aprobados, con resolución de 1.000 m², en la prestigiosa Avenida Rosselot.
Esta parcela de 5500 m² en el sector de Santa Adela ofrece un potencial inigualable en una ubicación estratégica.
Esta excelente propiedad, con acceso a servicios básicos, representa una inversión inteligente para desarrolladores e inversionistas visionarios.
Este terreno goza de una excelente conectividad con el resto de Quintero y sus alrededores, ofreciendo un fácil acceso a comercios, servicios y colegios. La zona es conocida por su tranquilidad, privacidad y belleza natural, lo que la convierte en un lugar ideal para vivir o invertir.
No pierdas esta oportunidad de adquirir un terreno con un potencial innegable, en una de las zonas residenciales más prometedoras de Quintero.
- Venta individual con tabla de valores en UF por metro cuadrado. Cuentan con rol propio.
- Venta proyecto rebajado por $400MM.
- Uso 100% habitacional.
- Contamos con CIP, planos, medidas, deslindes y resoluciones.
Descubre cómo esta inversión puede ser la clave para tu próximo gran proyecto inmobiliario. Contáctanos!
UF 7,6
$300.000
Maria Isabel Abarca Quevedo
UF 13,4
$530.000
Maria Isabel Abarca Quevedo
UF 8,1
$320.000
Maria Isabel Abarca Quevedo
UF 7,6
$300.000
Maria Isabel Abarca Quevedo